Mehrfamilienhaus als Anlageobjekt in Güstrow, Faktor 9,85 möglich
Preis
EUR 149.000
Courtage
7,14 % inkl. MwSt.
Wohnfläche
ca. 210 m²
Grundstücksfläche
ca. 368 m²
Objektbeschreibung
- Baujahr 1889
- Teilsanierung 1995 (Dach, Fassade, Elektro, Sanitär)
- guter optischer und baulicher Zustand
- Massivbauweise, Putzfassade, Dach mit Bitumenschweißbahn, Kunststofffenster
- Fußbd.: Laminat, Fliesen, Teppich
- Gasheizung Bj. 2002
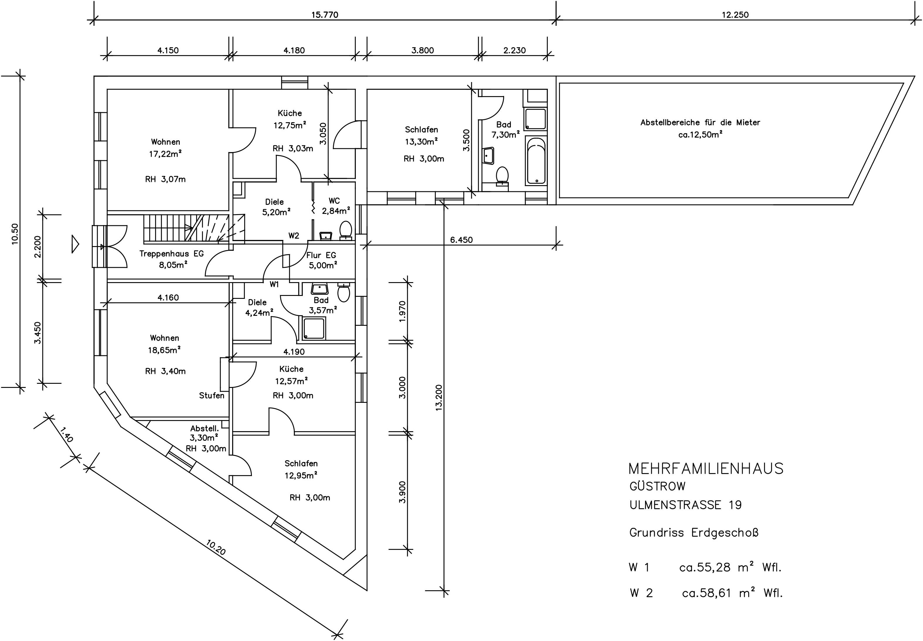
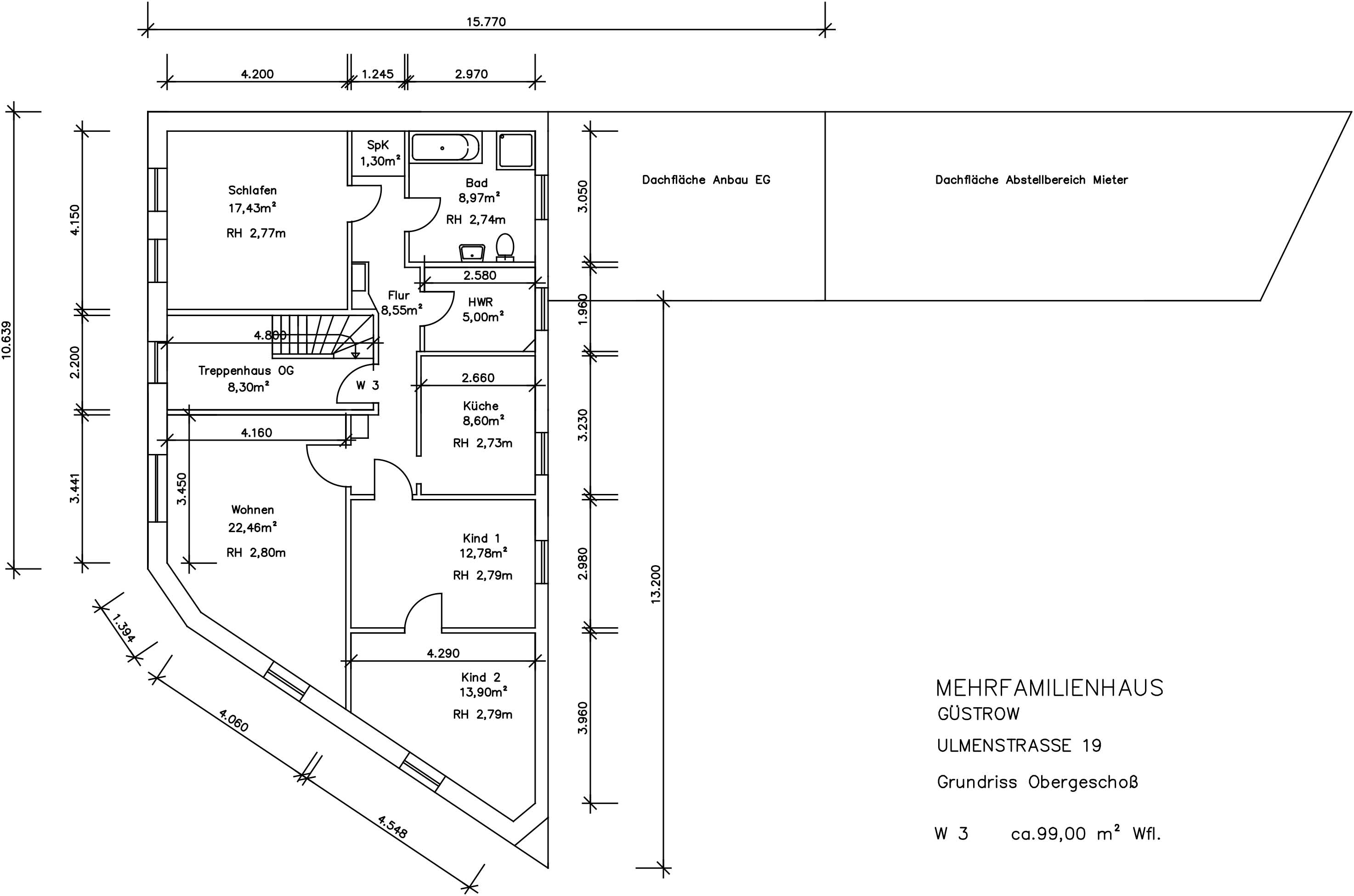
Wohneinheiten (WE):
- WE 1 (EG) = 58 m²
- WE 2 (EG) = 55 m²
- WE 3 (OG) = 97 m²
Mieten:
- IST-Jahresnettokaltmiete (JNKM)
10.092 EUR (bei 4,00 EUR/m²)
- SOLL-JNKM = IST-JNKM
- Potential-JNKM
15.120 EUR (bei 6,00 EUR/m²)
Lagebeschreibung
- Mecklenburg-Vorpommern, LK Rostock, Kreisstadt Güstrow
- verkehrsgünstige, zentrumsnahe Lage
- komplette Infrastruktur in Güstrow
- Rostock ca. 30 min, Ostsee ca. 40 min,
- A 19 ca. 10 min, Flughafen Laage ca. 15 min
