Ferienhaus-Neubau im Bauhaus-Stil
Preis
EUR 249.000
Wohnfläche
ca. 103 m²
Grundstücksfläche
ca. 710 m²
Objektbeschreibung
- Bauhaus-ähnlicher Stil
- offene, lichtdurchflutete Räume
- großer heller Wohn- und Essbereich
- geräumige Wendeltreppe
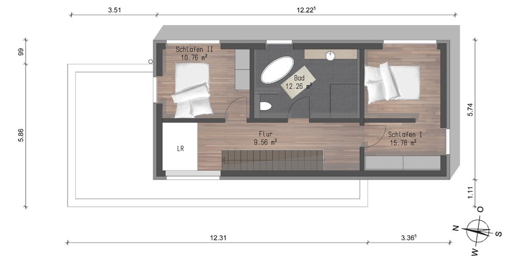
- 2 Schlafzimmer
- modernes Tageslichtbad
- großzügige Terrassen in EG und OG
- integrierter Carport
- freistehende Wanne, Bad-Armaturen von Grohe
- Kaminvorrüstung, Kamin-Einbau gegen Aufpreis möglich
- bodentiefe Fenster
- EG: Fliesen, OG: Laminat, Bad: Fliesen
Lagebeschreibung
- 18356 Pruchten
- naturnahes Areal
- am südlichen Bodstetter Bodden
- nur ca. 2 km Luftlinie zum Darß
- ca. 8 km bis zum Ostseestrand (Zingst)
