Grosses Grundstück mit Landhaus - zusätzlich bebaubar!
Preis
EUR 90.000
Wohnfläche
ca. 114 m²
Grundstücksfläche
ca. 2.800 m²
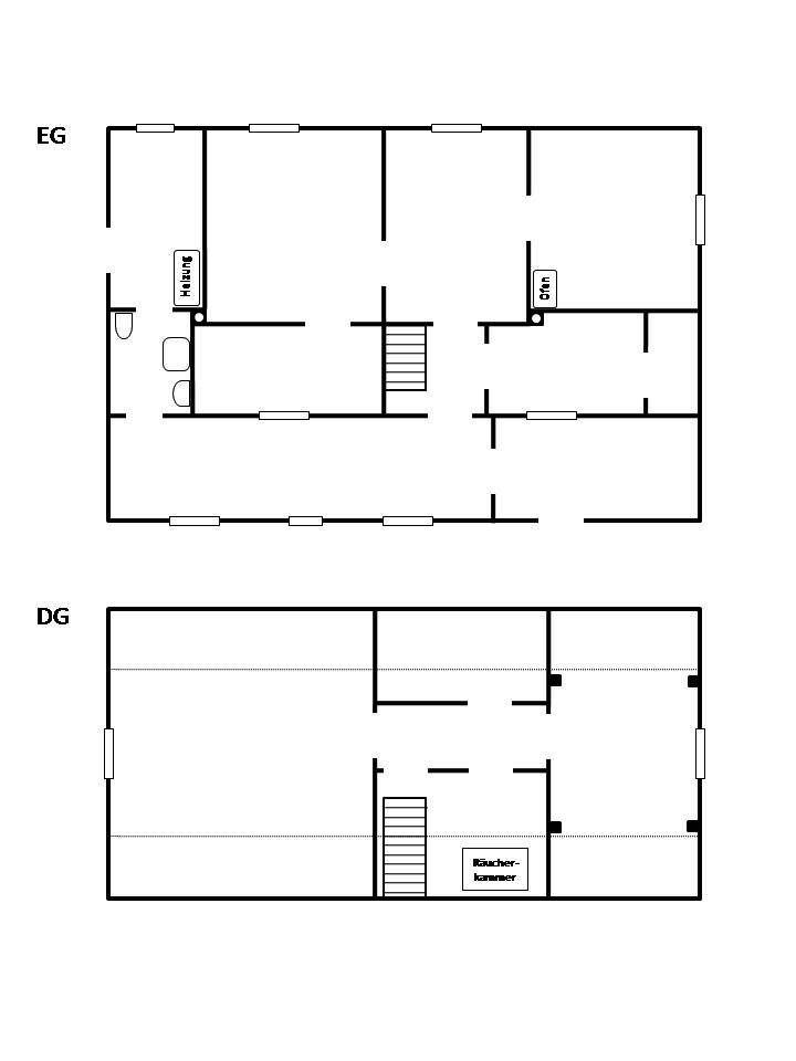
Objektbeschreibung
- Baujahr: 1949-1950
- Wände: massiv, verputzt
- Dach: Blech, gedämmt (1990er neu)
- EG (plus Anbau und Veranda):
- 4 Wohnräume, Duschbad, HWR, Küche,
- DG: 1 Wohnraum ausgebaut (12 m²),
- weitere ca. 25 m² Ausbaureserve
- Kunststofffenster, 2fach verglast
- Fußböden: Dielen, Fliesen, Textil
- Zentralheizung (Öl, BUDERUS, 2014)
- zusätzlich 1 Kachelofen
- Abwasser: zentral
- Brunnen mit Wasserpumpe
- diverse Nebengebäude vorhanden,
- u.a. Bootsschuppen (ca. 96 m²)
- zusätzliche Bebaubarkeit möglich !
Lagebeschreibung
- Saal: kleine Gemeinde im Landkreis Vorpommern-Rügen
- knapp 1 km zum Saaler Bodden (Zugang zur Ostsee)
- ruhige Lage am Ortsausgang der Gemeinde
- an der Strasse in Richtung Neuendorf
- Ribnitz-Damgarten etwa 10 km entfernt
- nur 30 Minuten Fahrtzeit zum Ostseestrand
- Radwanderweg direkt am Grundstück
