Mehrere Generationen unter einem Dach
Preis
EUR 90.000
Wohnfläche
226 m²
Grundstücksfläche
1.856 m²
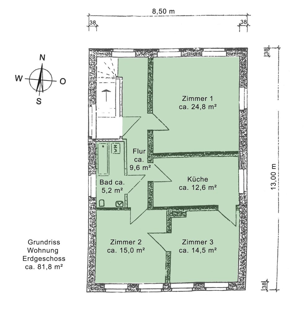
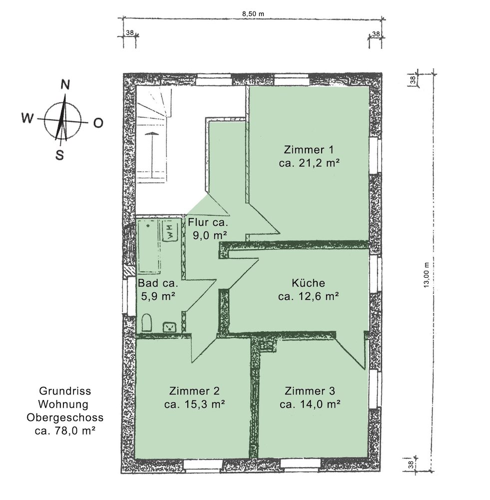
Objektbeschreibung
- Mehrfamilienhaus (MFH)
- 3 Wohneinheiten (WE)
- EG ca. 81,8 m² Wohnfläche
- OG ca. 78,0 m² Wohnfläche
- DG ca. 66,2 m² Wohnfläche
Ideal zum Wohnen von 2 - 3 Generationen unter einem Dach oder als Vermietungsobjekt zur Kapitalanlage! - Baujahr ca. 1900
- 1995 entkernt und saniert
- Fassadenanstrich 2013 (3 Seiten)
- Massivbauweise, Putzfassade, Ziegeldach, Kunststofffenster
- guter optischer und baulicher Zustand
- mit malermäßiger Renovierung bezugsfertig
- ausreichend Kfz.Stellplatz auf dem Grundstück
- Bau von Carports und Garagen möglich
- jede WE: 3 Zimmer, Küche, Bad, Flur
- Tageslichtbäder mit Wanne und Waschmaschinenanschluß
- Fußböden: PVC, Fliesen
- Heizung mit Nachtspeicheröfen
- Biokläranlage Bj. 2013
- zentrale Sat.TV-Anlage
- Internet 16 Mbit
Lagebeschreibung
- Mecklenburg-Vorpommern
- Landkreis Vorpommern-Rügen
- Gemeinde Gremersdorf-Buchholz, OT Gremersdorf
- verkehrsarm und ruhig gelegen
- schnelle Anbindung an die A20
- keine Infrastruktur im Ort
- Triebsees ca. 11 min
- Grimmen ca. 15 min
- Rostock ca. 45 min
- Ostsee ca. 50 min
